60
33
20
惠邦联盟新城小区团装正在进行中……


参加团装活动享受哪些优惠政策
图片或者文字排版出来即可
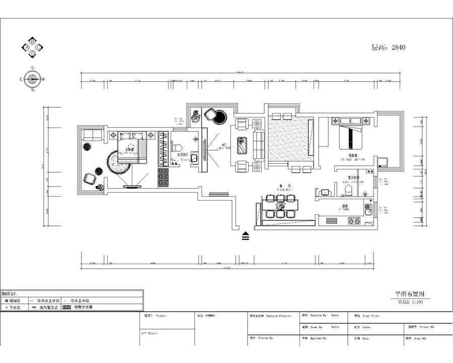
装修设计的效果图最好再加上户型图








| 团装小区 |
轻舟旗舰店:驻马店驿城区雪松路惠邦联盟新城12#15楼
乾崑仓储运营中心:驻马店雪松路西段西建材城
新蔡轻舟墅美整装馆:新蔡县人民西路神华世纪广场一楼
汝南轻舟整装:汝南县吉祥大道与古塔路交叉口东40米
西平轻舟整装:西平县西平大道军悦天地门口
漯河轻舟整装:漯河市郾城区檀溪谷东1门旁
关注企业微信
免费预约量房报价